CEDIA全球“BEST HOME THEATRE”案例赏析:现代与科技的完美结合
2016美国.达拉斯CEDIA颁奖礼——堪称全球家庭影院行业的奥斯卡Oscars盛会,者尼家庭影院“星球大战”主题项目代表亚太区参赛,最终艳压美洲区、欧洲区、非洲区等优秀项目,获得了全球的“BEST HOME THEATRE”大奖!
2016美国.达拉斯CEDIA颁奖礼者尼获奖现场
“星球大战”项目整个影音室设计灵感来源于“星战系列”,科技感十足,以太空舱私人影院来致敬经典。在电影和人生中,实现着各种不可能!同时器材设备、声学材料的选用与室内气氛、色调都相当搭配,空间感相当协调!
2016 CEDIA全球最佳家庭影院大奖者尼获奖项目“星球大战”
2016 CEDIA全球BEST HOME THEATRE大奖者尼获奖项目“星球大战”
基本情况介绍
项目地址:上海市虹桥路1168弄
户型情况:47平米地下室独立空间
项目基本情况:业主本人非常喜爱看电影和玩游戏,非常注重声音的层次感、真实感和包围感,所以无论在音响设备的选取还是空间布局方面都非常严格。
所用设备清单
声学处理: QuestAI声学模块
丹麦进口透声布
主扬声器: GTL AP Platinum
环绕扬声器:GTL AE963
超低音扬声器:Bay Audio PTM+ 12
Bay Audio PTM+ 15
前级放大器:MARANTZ AV8802
后级放大器:Aragon Iridium-B
Aragon 8008-B
超低音功放:JamesLoudspeaker M1000
数字处理器 :ZENE DZ-24DSP
幕布:Screen Excellence RF 170 WS (2.35:1 4K画框透声幕)
播放器:OPPO BDP-103D zBox (者尼定制媒体中心)
智能中控:Control4
影院沙发:Fortress Kensington
设计公司
者尼系统集成(上海)有限责任公司
关于设计
CAD效果图
我们认为应该是结合现场环境、客户喜好、功能需求、专业声学要求、美学要求、设备尺寸位置等平衡考虑,缺一不可,在各种信息、数据汇总下,再加入创意,才能得到一个好的设计作品。本案设计难点为美学与声学的相融合。
设计概述
CAD效果图
1. 原始墙体结构改造,设计独立放映设备间。
2.设计影院地台,同时不影响设备间正常出入。
3.与空间美学大师多米尼克沟通造型设计,隐藏所有扬声器和声学处理材料。
4.软装搭配:影院沙发,声学隔音门。
设计思路
室内结构改造
将房屋中原始隔断墙拆除,东南角角门洞封起来。这样提升整体空间利用率,同时在房间西侧做了放映设备间,优化整体空间。
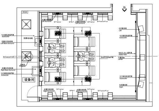
前墙幕布180寸,后方左中右三只扬声器,一只15寸超低音,一只12寸超低音。
左右墙各两只侧环绕扬声器。顶面4只全景声扬声器。
后墙放置两只后环绕扬声器,一只15寸超低音,一只12寸超低音。
侧墙及后墙使用专用声学材料。
CAD效果图
墙体结构设计
墙体结构改造
房间墙面均使用弹性减震墙构造,使房间形成一个房中房结构,提升低频表现力,同时增加一部分隔音量。目前弹性减震墙的设计方式是解决低频的最佳处理方式。设备间墙体做凹造型,巧妙隐藏后方两只超低音扬声器。
墙体结构改造
地台设计
地台及墙面
地台在设计过程中,为保证影院内第二排沙发观众不会被第一排观众遮挡视线,将地台高度设计到45CM,同时为了考虑设备间的正常出入,所以设计了U型地台,地台两边设计阶梯,这样地台的问题就算是解决了。
其他细节图
外饰面安装
造型灯带
机柜安装
案例完成视图欣赏