400-611-6009 上门量房预约
案例赏析

新悦庭—荣获2013CEDIA亚太区BEST HOME THEATRE

深邃的美丽  小房间也有大精彩

 
许多客户由于房间面积不够大而对做私人影院心有顾虑,这间位于天津新悦庭的私人影院的总面积是22平方米,算不上做私人影院的最佳面积。

但是经过专业考量和定制,这个小面积的长方形房间摇身一变成为一间极具特色的私人影院,

所谓麻雀虽小但五脏俱全,我们一起来解读小影院独有的深邃魅力。



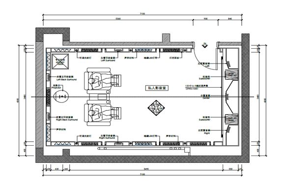
注:影音室平面布置图
 


影院的空间以长方形呈现,纵深感十足,更能将观者的目光牢牢的吸引在屏幕上。

静谧的蓝色在白光的映射下,足以让人抛却外界纷扰,静静享受这份独处的时光。



注:影音室侧墙声学材料设计图


注:影音室声学材料
 
小空间私人影院在声学处理上存在一些难点,由于空间小容易引起驻波、振颤、回声等声音干扰,所以声学调试比大空间的要求更为精确。

这间影院在声学处理上采用了专业的声学材料,用于改善整个房间的声场环境,

使主音更加清晰,环绕声更具包围感,更逼真地还原影片原有的音质效果。



注:侧墙雕花设计图




注:雕花设计成果展示

这间浓缩了专业影院精华的小房间影音室在美学设计上也毫不逊色,整体风格现代简约,

木刻雕花的使用锦上添花,品质细节完美流露,勾勒出精美的中国风。
  
  每个原始房间都有各自的特点,影音室的设计方案也不尽相同。

经过专业设计和合理搭配,房间面积不会成为阻碍影音室效果的因素,像新悦庭这个项目一样,小房间也独有大精彩。


上一篇 下一篇